705 Wingrave Drive, Charlotte, NC 28270
701 Wingrave Drive

701 Wingrave Drive

705 Wingrave Drive, Charlotte, NC

$2,995,000

HIGHLIGHTS
  • 5 Beds
  • 5 Full Baths
  • 1 Half Bath
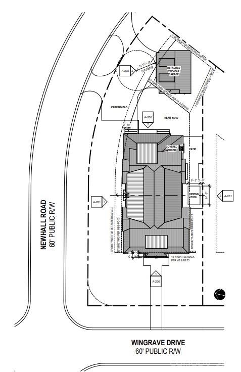
  • 0.37 Acres Lot
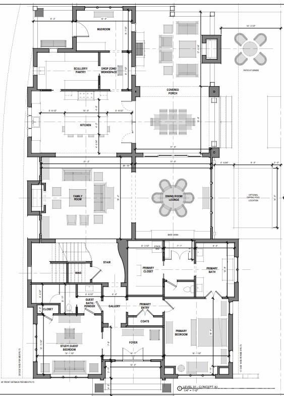
  • 5,179 Sq.Ft. Living
  • 2026 Year Built
  • For Sale Status
  • 4324776 MLS® ID
Gorgeous New Construction in the Heart of Lansdowne! Welcome to 701 Wingrave Drive, a stunning new construction masterpiece nestled on one of the most desirable corner lots in Lansdowne. This stately home offers over 5,100 square feet of beautifully designed living space, featuring 5 bedrooms and 5.5 baths. The main level primary suite provides luxurious comfort and convenience, while a second main-level bedroom with a full bath offers incredible flexibility--perfect for a home office, mother-in-law suite, or guest bedroom. Upstairs, you'll find three additional bedrooms, each with their own ensuite bath, along with a spacious bonus room that's ideal for a playroom, media room, or secondary living space. Enjoy seamless indoor-outdoor living with a covered rear porch and outdoor fireplace, ideal for entertaining or relaxing year-round. The detached two-car garage enhances the home's curb appeal, while the .37-acre corner lot offers privacy and the perfect opportunity to add a plunge pool or garden retreat. This is a rare opportunity to build semi-custom in one of Charlotte's most established and beloved neighborhoods. With tree-lined streets and an unbeatable central location, you'll enjoy easy access to SouthPark, Cotswold, Uptown, the Arboretum, and Matthews--plus you're right inside Charlotte's premier private-school corridor. Get in early to personalize your finishes and create the home of your dreams in Lansdowne--where classic charm meets modern luxury. Built by Bird Dog Group, a renowned builder known for his uncompromising craftsmanship, this home spares no detail. Every element--from the architectural design to the finishes and fixtures--reflects top-notch quality and timeless style.
Show MoreShow Less
Natalie Rutherford

Natalie Rutherford

BROKER, REALTOR®
Phone

704 609-1103

FEATURES & AMENITIES

Interior

  • Total Bedrooms5
  • Total Bathrooms6
  • Full Bathrooms5
  • Half Bathrooms1
  • Laundry roomLaundry Room, Main Level, Upper Level
  • FlooringTile, Wood
  • FireplaceFamily Room, Gas Vented, Outside
  • APPLIANCESDishwasher, Disposal

Area & Lot

  • Status For Sale
  • Living Area5,179 Sq.Ft.
  • Lot Area0.37 Acres
  • MLS® ID4324776
  • TypeResidential
  • YEAR BUILT2026
  • Architecture StylesEuropean, Traditional, Transitional
  • Elementary SchoolLansdowne
  • Middle SchoolMcClintock
  • High SchoolEast Mecklenburg

Exterior

  • STORIES2
  • Garage Spaces2.0
  • Water SourceCity
  • roofArchitectural Shingle
  • lot featuresCorner Lot, Level
  • parkingDriveway, Detached Garage
  • HEAT TYPECentral
  • AIR CONDITIONINGCentral Air
  • sewerPublic Sewer
  • SubstructureCrawl Space

Financial

  • Sales Price$2,995,000

Give Us a Call Today!

Always working for you, we don’t rest on our past success. Expect your Pridemore Properties agent to employ an aggressive and well-planned marketing strategy to get you to the closing table — fast. Start your home searching journey with us!

Contact Us

Follow Us on Instagram